Model House

モデルハウス

浜松中央区上島四丁目

浜松中央区上島四丁目

SIコラボレーション モデルハウス
遠鉄ホーム × 積水ハウス ― 強さと自由・快適が両立する住まい ―

Concept

「強さ」と「自由・快適」が両立する、
遠鉄ホームの新しい住まいのカタチ。

「SIコラボレーション」は、遠鉄ホームの自由設計・快適性に、積水ハウス独自の耐震技術を融合させた共同建築プロジェクトです。高い耐震性能をベースにしながら、大空間・大開口のある、心地よく自由な暮らしを実現。確かな構造と設計力をモデルハウスでご体感ください。

  • 【期間】2026年1月1日(木) ~ 2026年3月31日(火)【対象】SIコラボレーションによる新築注文住宅【条件】以下の条件をすべて満たす方が対象となります。・2026年3月31日までの工事請負契約締結、2027年3月末までにお引渡しが可能な方 ・キャンペーン期間以前に遠鉄ホームとご契約いただいていない方 ・完成見学会の開催、写真・動画の撮影、HP・SNS・カタログへ施工事例掲載にご協力いただける方 ※他の特典との併用は原則不可 ※詳細は営業担当者までお問い合わせください

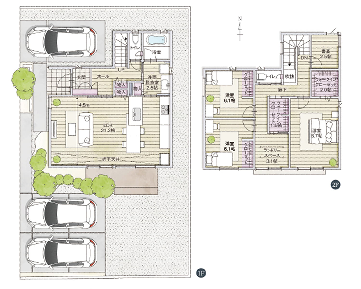
モデルハウスプラン

Contact

所在地:浜松中央区上島四丁目

営業時間
10:00〜18:00
定休日
水曜日 お盆・年末年始等

モデルハウスの見どころ

  • 構造・耐震

    構造・耐震

    壁倍率7.3の高強度耐力壁を採用し、実大実験と構造計算で耐震性能を実証。確かな構造が、日々の安心な暮らしを支えます。

  • 大空間LDK

    大空間LDK

    DJ構法により柱や壁を抑えた、大空間・大開口のLDKを実現。家族が自然と集まる、開放感あふれる住まいです。

  • 快適性能

    快適性能

    断熱等級6レベルの高断熱仕様と、全熱交換型第一種換気を採用。一年を通して、快適で心地よい室内環境を保ちます。

  • インテリア

    インテリア

    「グレイッシュノスタルジー」をコンセプトに、浜松産の高級杉材「天竜杉」の天井パネリングなどを採用した、遠州の記憶と和の趣を感じさせる空間です。

  • 体感できる構造

    体感できる構造

    構造の強さや空間の広がりを、実際に見て体感できるモデルハウス。実物模型や映像で、仕組みを分かりやすくご紹介します。

  • リアルサイズ設計

    リアルサイズ設計

    延床約35坪のリアルサイズで、暮らしを具体的にイメージ。間取りや収納、動線まで現実的に確認できます。

現地地図

所在地:浜松中央区上島四丁目

  • 【期間】2026年1月1日(木) ~ 2026年3月31日(火)【対象】SIコラボレーションによる新築注文住宅【条件】以下の条件をすべて満たす方が対象となります。・2026年3月31日までの工事請負契約締結、2027年3月末までにお引渡しが可能な方 ・キャンペーン期間以前に遠鉄ホームとご契約いただいていない方 ・完成見学会の開催、写真・動画の撮影、HP・SNS・カタログへ施工事例掲載にご協力いただける方 ※他の特典との併用は原則不可 ※詳細は営業担当者までお問い合わせください

見学予約フォーム

    • 第一希望日時 必須
    ※当日のご予約はご希望に沿えない可能性があります。
    • 第二希望日時 任意
    ※当日のご予約はご希望に沿えない可能性があります。
    • お名前 必須
    • フリガナ 任意
    • メールアドレス 必須
    ※「ドメイン指定受信」機能をご利用の方
    ドメイン設定で「@si-entetsuhome.com」を受信可能にしてください。設定されていない場合、返信メールが届きません。
    ドメイン指定受信機能のご利用方法は、お使いの端末のマニュアルをご参照ください。
    • 郵便番号 必須
    • 住所 必須
    • 電話番号 必須
    • 参加人数 必須
    • 大人 :
      子供 :
      お子さんのご年齢:
    • 当社をどこで
      知りましたか 必須
    • ※以下の選択肢の中から当てはまるものをすべてお選びください。

    • 備考 任意

    【個人情報の取扱いについて】
    本フォームからお客さまが記入・登録された個人情報は、資料送付・電子メール送信・電話連絡などの目的で利用・保管し、第三者に開示・提供することはありません。
    個人情報の取扱いにおいては「個人情報の保護に関する法律」(個人情報保護法)及び関連する法令、ガイドライン等を遵守した業務運営に努め、「遠州鉄道個人情報保護方針」に従って個人情報保護に万全を尽くします。

    「遠州鉄道個人情報保護方針」はこちら